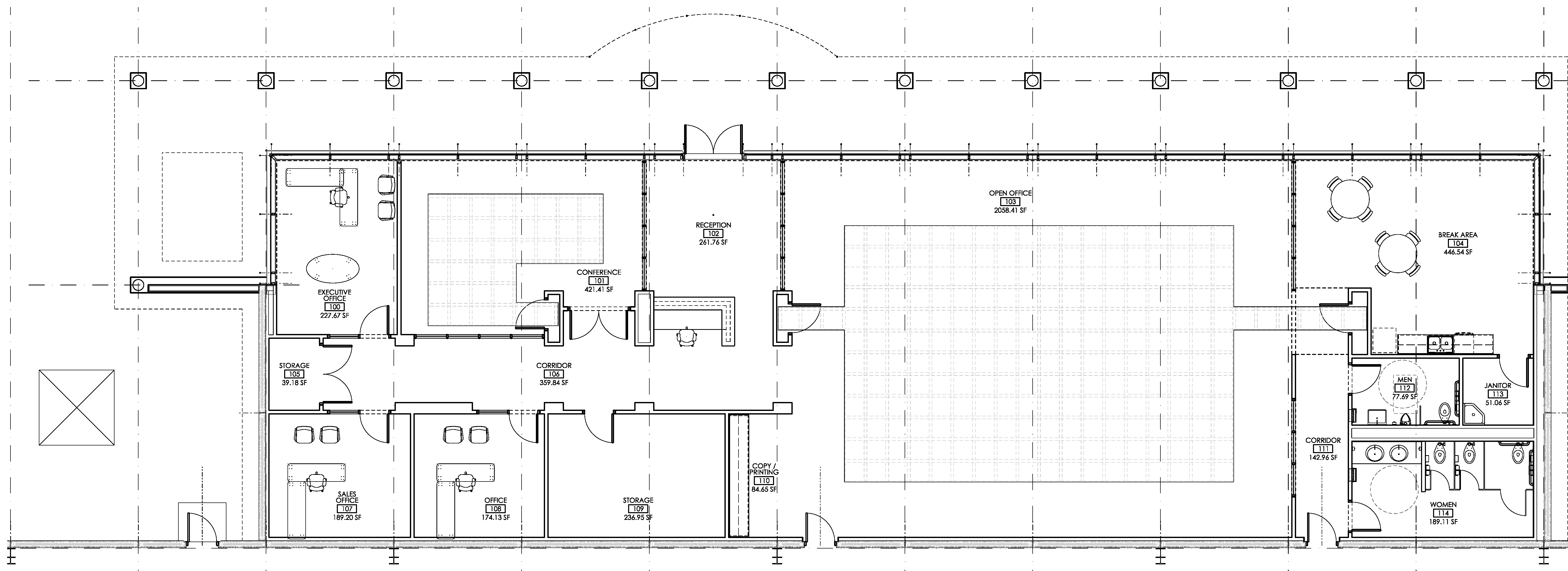
Logistics Warehouse & Office
 
                                     
                                    American Lamprecht commissioned Context Design Group, PLLC to develop a design for a third-party logistics warehouse on a very difficult site adjacent to their current location in Duncan, South Carolina. CDG developed a Conceptual Design Package to address the needs of the program and maximize the warehouse area. The facility consists of 36,000 SF Warehouse and 6,400 SF of Corporate Office & Support Space.