BMW/Rover Engineering & Environmental Testing Lab
Provided Architectural Programming, Conceptual Design and Site Master Planning for an 85,000 SF Facility in Oxnard, California. The facility was planned for an 18.4 Acre site within 1 mile of the Pacific Ocean and 2 miles from the Port of Oxnard.
The building was designed to accommodate the relocation of the Western Region Offices of BMW and the North American Environmental/Emissions Testing Lab from a leased site in Los Angles to a BMW owned site in Oxnard.
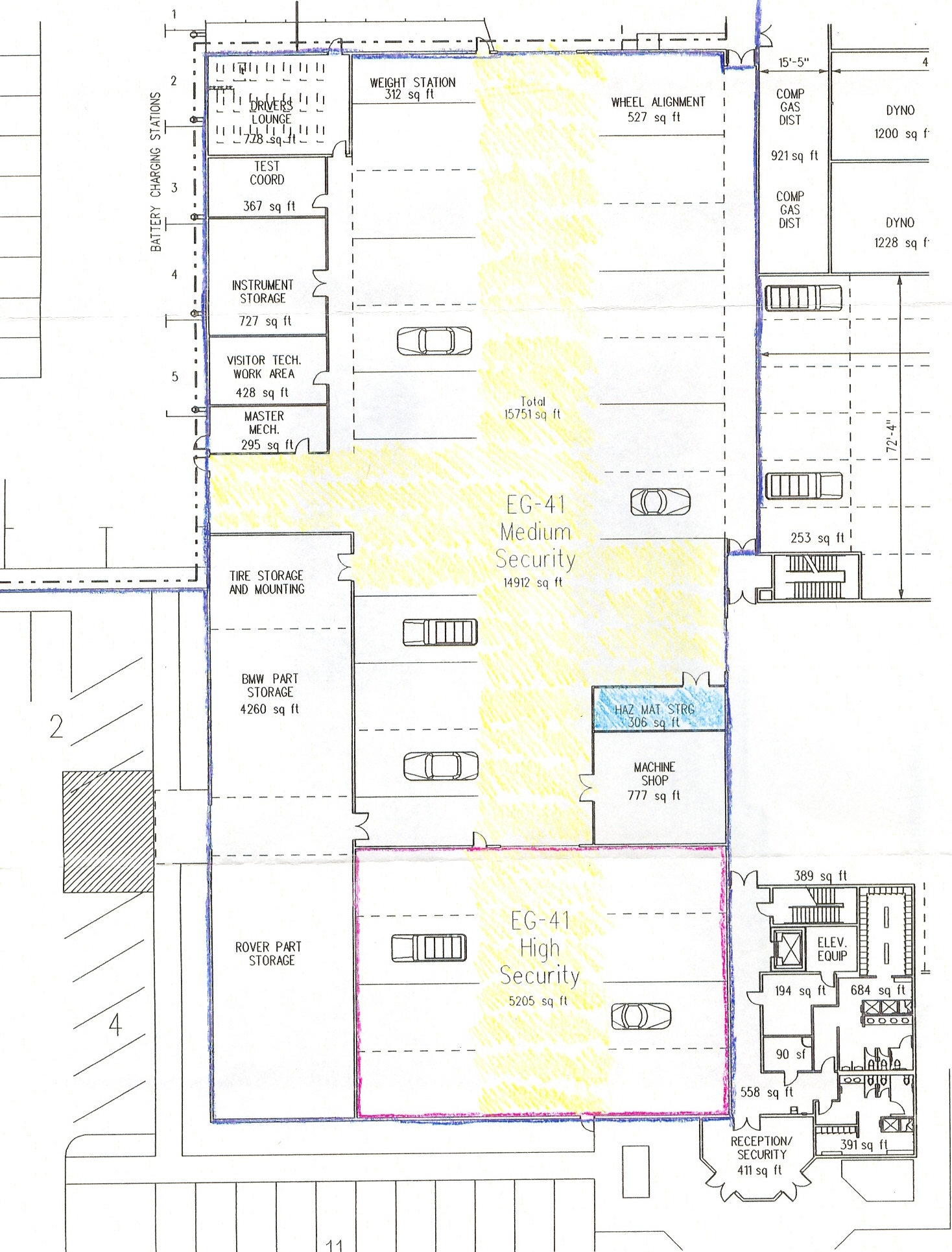
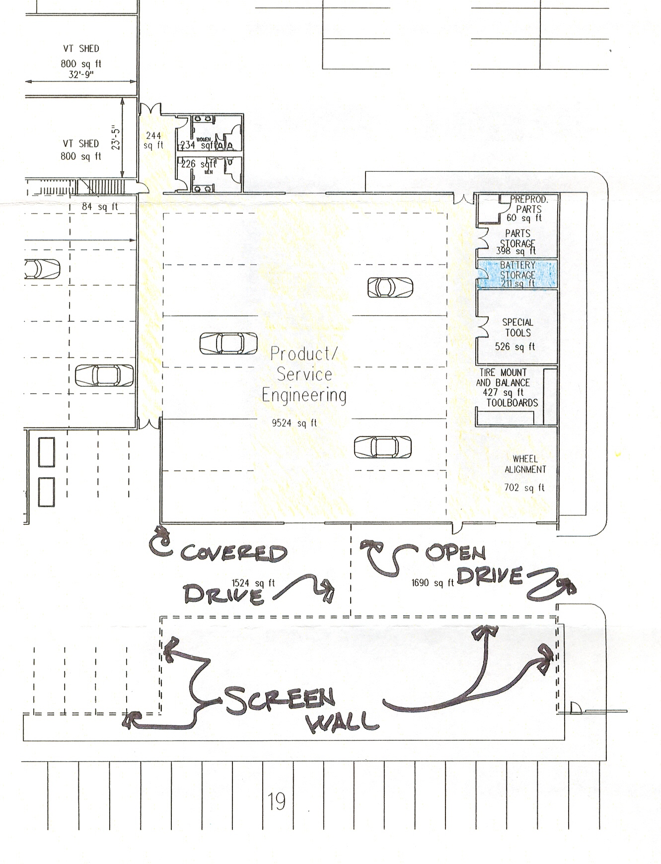
The Engineering Test facility is comprised of three departments (EG-41/Rover Prototypes, Environmental Engineering and Product/Service Engineering.
In addition to the design of the new function on the Oxnard Site our team evaluated the overall flow of the existing Vehicle Preparation Center (VPC) and made recommendations for streamlining the existing operation. The VPC design considerations made changes in the overall flow along with the addition of a new “State of the Art” paint line for the additional Rover product activity.
The Engineering/Testing Facility was designed to support the various functions associated with each of the three user groups along with their needed support and office functions.
Testing facility functions consisted of High & Medium Security Product Development Test Areas, Part/Supply Storage areas, 33 Car Soak Room, 4 Dyno Stations, 2 VT Shed’s, 1 Running/Loss Shed, ORVR Shed, Fuel Shed/Stations and Product/Service Engineering Functions.
* Completed as a Simons Engineering Project
 
                                     
                                     
                                    